Lenox B #S0808

Starting at $2,488
786 Sq. Ft. | 1 Bed | 1 Bath
Available Nov 5
Lenox B

Features

  • Living Areas

    • Wood Flooring 1
  • Kitchen and Bath

    • Fully-equipped Kitchen
    • Dishwasher
    • Countertops Granite Legacy
    • Microwave
    • Shower Tile
    • Appliances Stainless Steel Legacy
    • Refrigerator Legacy
  • Home Attributes

    • Smart Home Door Lock
    • Central Air Conditioning
    • Dryer
    • Corner Apartment
    • Washer
  • Premium Features

    • Walk-in Closets
    • View Courtyard
    • View Bay 2
    • View City
    • Storage Built-In
  • 2D Diagram
  • 2D Diagram Furnished
  • 3D Tour
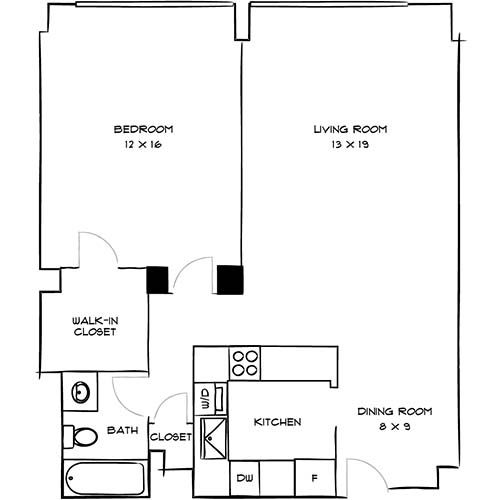
2D Diagram

Lenox B

This 1-bedroom, 1-bathroom floor plan features a spacious layout with expansive city views of Miami. Washer and dryers are available in select homes.

2D Diagram Furnished

Lenox B

This 1-bedroom, 1-bathroom floor plan features a spacious layout with expansive city views of Miami. Washer and dryers are available in select homes.

Lenox B

This 1-bedroom, 1-bathroom floor plan features a spacious layout with expansive city views of Miami. Washer and dryers are available in select homes.

*Apartment prices, availability and terms are subject to change without notice. Apartment photos and floor plans are for illustrative purposes only. Actual square footage, layout, and property or apartment features may vary.